Производственно-строительная компания ООО "СЭД" - строительство деревянных домов из оцилиндрованного бревна
 
СтройЭкоДом
 
 
 
 
 
  Проекты беседок, колодцев, будок, и других маленьких строений их бревен    
Проекты деревянных бань, саун, из бревна.   Проекты деревянных домов, коттеджей из бревна
 
 
 
Калькулятор расчета стоимости - деревянные дома из оцилиндрованного бревна

Выезд на строительную площадку - деревянные дома, выезд, в регион застройка

Производство - деревянные дома из оцилиндрованного бревна

Этапы строительства деревянных домов из оцилиндрованного бревна

Работа по индивидуальному заказу проектирование деревянные дома из оцилиндрованного бревна

Статьи по домостроениею, деревянные дома из оцилиндрованного бревна

оформление земли

Свяжитесь по телефону для вопроса по деревянным домам из оцилиндрованного бревна
Волжский

Подробное описание

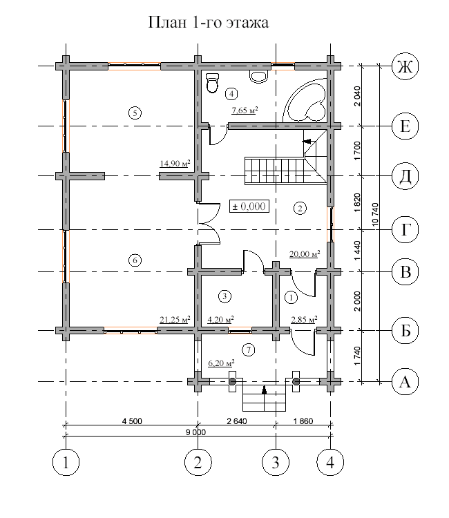
Коттедж из бруса спроектирован в двух уровнях. На первом этаже расположены открытая терраса, тамбур, комната, холл, гостиная, кухня-столовая, санузел, кладовая. На мансардном этаже находятся холл, спальня, детская, балкон.
Проект деревянного дома в коттеджном поселке

Деревянный дом в коттеджном поселке

Дом из оцилинддрованного бревна в коттеджном поселке

деревчнный дом в коттеджном поселке

деревянный дом из оцилиндрованного бревна

 


дома из бруса, деревянные дома, дома из оцилиндрованного бревна, бани из оцилиндрованного бревна, дома из дерева, деревянные дома из оцилиндрованного бревна, деревянный дом, деревянные дома из бревна, сруб бани, дома из оцилиндрованного бревна цены, сруб бани цена, деревянные дома бани, бани из бревна, сруб дома, купить деревянный дом, дома из оцилиндрованного бревна, деревянные дома цены, деревянные дома, дома проекты, строительство деревянных домов из оцилиндрованного бревна, мск, спб, Белгород, Брянск, Великий Новгород, Воронеж, Иваново, Владимир, Вологда, Калуга, Кострома, Киров, Липецк, Москва, Нижний Новгород, Орел, Псков, Рязань, Санкт-Петербург, Смоленск, Тамбов, Тверь, Тула, Ярославль, работы в строительстве в деревянном доме стоимости баню

Смотрите на сайте:

   Яндекс.Метрика
ООО "СтройЭкоДом " 2026 г.
ООО 'Классные дома' - строительство деревянных домов из оцилиндрованного бревна Проекты деревянных домов из оцилиндрованного бревна Цены на строительство деревянных домов из оцилиндрованного бревна Сопутствующие комплектующие при стротельстве деревянных домов из оцилиндрованного бревна Контактная информация