Изготовление документации
Вами давно принято решение о строительстве загородного дома, появилось приблизительное представление о том, как он будет выглядеть, из какого материала будут возведены стены. Надеемся, выбор сделан в пользу деревянного дома.
Теперь Вы готовы передать свою драгоценную мечту в заботливые руки профессиональных строителей. Считаете, что пришло самое время развернуть масштабные мероприятия на вашем участке? Не торопитесь.
К сожалению, многие застройщики не до конца понимают, что грамотное проектирование дома позволит сэкономить до 30% средств во время строительства. Несмотря на то, что почти каждый из нас знаком с печальным опытом самостроя, мы продолжаем наступать на одни и те же грабли. Никому из нас не придет в голову доверить медицинскую операцию дилетанту.
При строительстве небольших строений во многих случаях совершенно не обязательно заказывать полный пакет проектно-сметной документации. Особенно это касается небольших зданий и сооружений (бани, дачные домики и т.д.). Наиболее подробный проект требуется при производстве и строительстве домов из оцилиндрованного бревна или коттеджей. Это вызвано тем, что все элементы строения изготавливаются в заводских условиях и любое отклонение от размеров, предусмотренных в проекте приводит к невозможности последующей сборки дома на строительной площадке.
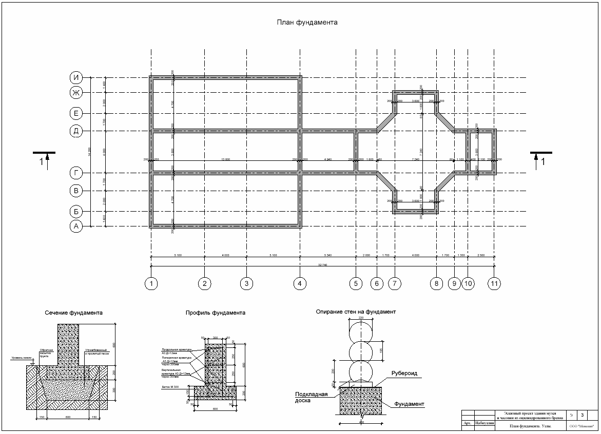
Минимальный комплект рабочей документации на изготовление и строительство дома из оцилиндрованного бревна обязательно должен включать в себя следующие документы:
- Сводную спецификацию элементов стенового комплекта с распределением их по осям проекта и точным подсчетом физических объемов, необходимым для дальнейшего составления сметы и осуществления контроля во время строительства.
- Спецификацию элементов стенового комплекта с точными чертежами каждого элемента и его размерами. Это позволит точно изготовить комплект Вашего домостроения.
- Спецификация элементов сруба по венцам. Позволит изготовлять и производить отгрузку домостроения последовательно - от нижних венцов до верхних. Минимизирует простои строителей во время сборки.
- Развертки стен по осям проекта. Наглядно демонстрируют вертикальное расположение элементов и их соединения в стенах дома.
- Планы венцов дома. Наглядно демонстрируют горизонтальное расположение элементов и их соединения в венцах дома.
- Оптимизация раскроя стандартного пиловочника на элементы стенового комплекта. Показывает, какое количество сырья требуется для изготовления домостроения и минимизирует количество отходов.
Во время масштабного строительства дома на дачном участке без проекта строительной документации не обойтись!
Строительство зданий и сооружений осуществляется по проектам. К основным принципам геодезического проектирования относятся:
1. Вариативность, предусматривающая рассмотрение не менее двух вариантов любого организационно-технического решения (выбор метода, технологии, способа, приборов и т. д.).
2. Проектирование от общего к частному, предполагающее последовательность постановки задач и их решений в пространстве и во времени с указанием цели, а затем пути ее достижения (от комплекса — к объекту и его частям; от конечного допуска — к точности отдельных геодезических операций).
3. Комплексность проектирования, предусматривающая параллельность
постановки задач и увязку решения различных вопросов — тесная
увязка геодезического обеспечения с техническими проектами, их технологическими и строительными частями, проектами организации и производства на строительных работ.
4. Использование типовых проектов, предназначенных для многократного использования, что ускоряет процесс проектирования, сокращает объем документации.

Геодезическая подготовка проекта
Строительство инженерных сооружений осуществляется по рабочим чертежам проекта, которые разрабатываются на основе всесторонних комплексных изысканий.
Основными документами проекта являются:
- генеральный план масштаба 1:500 — 1:2000;
- рабочие чертежи (1:500 и крупнее);
- проект вертикальной планировки (1:1000 — 1:2000);
- планы и продольные профили дорог, подземных коммуникаций, Воздушных линий (масштабы: горизонтальный 1:2000- 1:5000; вертикальный 1:200-1:500);
- схемы геодезического обоснования строительных площадок, чертежи центров, ведомости координат и отметок;
- пояснительная записка.
Генеральный план представляет собой основной чертеж, выполненный на топографической основе, на нем нанесены все проектные сооружения и здания, указаны проектные координаты главных точек и отметки характерных плоскостей. Для сложных сооружений генплан дополняют чертежом разбивки главных осей.
Ведомость комплекта четежей содержит последовательный перечень листов основного комплекта.
Аналитический расчет проекта
Для выноса проекта в натуру все его геометрические элементы должны быть строго математически увязаны между собой и с имеющимися на площадке сооружениями.
При аналитическом расчете по проектным размерам и углам вычисляют координаты пересечений осей сооружений, проездов, красных линий застройки и, наоборот, по известным координатам, полученным из измерения на местности или снятым с карты (плана), находят расчетные значения длин линий и углов поворота. На трассах определяются элементы прямых и кривых, проектные высоты и уклоны. В опорных зданиях проверяют координаты углов точек. Главные разбивочные оси привязывают к пунктам геодезической основы.
Таким образом, при аналитическом расчете проекта решаются прямые и обратные геодезические задачи, задачи определения точек пересечения двух прямых, прямой и кривой, вычисление уравнений линий параллельных и перпендикулярных к исходным линиям, вычисление координат центров круговых сооружений; расчеты главных элементов кривых и др.
Для контроля проектные координаты вычисляют по замкнутым полигонам и ходам между пунктами геодезической основы.
Привязкой проекта — называют расчеты геодезических данных, по которым на местности разбивают главные оси сооружений. Привязка рассчитывается с гарантированным контролем. В зависимости от способа выноса в натуру (полярный способ, прямоугольных координат, линейные или угловые засечки и т. д.) вычисляются линейные и угловые элементы выноса в натуру.
Подобные документы желательны также и при строительстве домов из клееного бруса.
Опасайтесь тех фирм, которые убеждают Вас, что для того, чтобы построить хороший деревянный дом достаточно внешнего вида и планировок, а рабочую документацию делать совсем необязательно. Помните, где лежит бесплатный сыр? Не стоит экономить на том, что в дальнейшем позволит Вам осуществлять контроль над технологией сборки и объемами расходуемых материалов.
Очень Важно при проектировании понимать потребности людей, которые в этом доме будут жить, но не менее Важно знать технические особенности деревянного дома. Еще раз акцентируем Ваше внимание на том, что опыт деревянного домостроения подрядчика- залог надежного, крепкого и удобного дома для Вас и Вашей семьи.